fall and spring 2016: 432 park avenue, manhattan
thesis: “reducing the excess: influencing behavior through prescriptive design”
reduced living and storage space, hierarchical storage units and a mixture of private, communal and public spaces train residents to let go of ownership of both space and objects in favor of spatial quality (finishes / materials / light / views), sharing, and interaction. the chosen site represents everything that this project rejects, four levels were co-opted for its purpose.
the design strategy is derived from our need for storage and display- specifically the cabinet. two alternative definitions of cabinet are employed- a small room providing seclusion, and a collection of specimens of biological interest (aka a curiosity cabinet). each resident is provided their own cabinet (essentially a micro-apartment) for seclusion, but they are designed such that each unit becomes a curiosity, the life and movement of the inhabitant becomes the display. everyday items become glorified objects, and the resident’s everyday actions are ritualized.
the units are convertible to serve multiple functions. shown are the lounge (previous image), bedroom (below) and work desk conditions. storage is restricted to the stairs and small display windows.
to emphasize the ritual and elevate the mundanity of everyday actions, each storage stair is accessed in a manner specific to its content.
compulsory to their lease, residents take part in a materials workshop with the assistance of an in-house artist, working with post-consumer materials to create new finishes or furniture which is then displayed on their cabinets and sold in the showroom.
furniture and finishes made from post-consumer materials and products are displayed and sold in the showroom.
materials such as broken stone terrazzo, recycled rubber, rapidly renewable cork and locally sourced maple aim to reduce waste while maintaining a luxury feel.
the corridors become mini-exhibitions, with displays of human wastefulness elevated to the same level as high art.
during weekday working hours, the public is invited into the space to visit the exhibition and see the work of the residents, as well as take in the views of the city.
when this feature is closed, these spaces convert to additional communal spaces for the residents. these communal spaces are open, inviting and encourage interaction.
the living space converts for multiple uses. it can be closed for simultaneous smaller, more private gatherings such as movie nights, or opened for larger events. heavy felt curtains are sound absorbent for privacy and respect for neighbors.
fall 2015: SOFA contest winner
paper + air is based on the idea of a city as a place of constant change. the project considers the life of a city, unifying past, present and future through forms that are found in the overlap between expansion and contraction. the environment is fabricated from two primary materials: paper, made spatial through parametric design, and air as inflatable form. we understand buildings are time-based and evolve slowly over generations. inflatability can speed this process up to something a spectator can register. my contribution included design development, construction of an inflatable form, maintenance of the inflatable forms throughout the expo, presentation and a video of the exhibit.
inflate / deflate
the ability to play made the installation more accessible to guests.
spring 2015: 1987 east 3rd avenue, manhattan
a transitional housing complex for single homeless women, this project addresses the issue of homelessness in new york city by providing “housing first” apartments. the design co-opts an abandoned building in east harlem, using inexpensive or unexpected materials to create simple but elegant modular living spaces to provide a home and offer a renewed sense of dignity to the residents.
1987 east 3rd avenue, manhattan
an abandoned residence with storefronts in east harlem, this project rejuvenates the exterior with bright colors befitting the neighborhood
east harlem character: local street art, inexpensive materials, bright / bold color
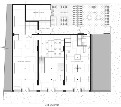
cellar level: workshop storage / social service offices for residents / public showers for those in need
ground level: refurbished furniture boutique / workshop / used clothing boutique / outdoor lawn space / greenhouse
first level: family units for women with children / laundry facility / shared living area
second and third levels: single units / laundry facility / shared living area
single unit: residents can select finish colors and textiles for a sense of agency.
group space provides computers and television, and an opportunity for interaction.
main public entry and workshop: these public spaces provide new skills and job opportunities for the residents as well as a way to reintegrate the women with the housed community.
used clothing boutique: local graffiti artists participate in the decor of the ground level areas to bring the atmosphere of east harlem into the space and invite passersby to enter.
the main entry at the rear of the building provides locked entry for privacy and security, a shared lawn and greenhouse provide a safe outdoor space for social interaction among the residents and a place to learn how to garden, allowing residents to contribute to the community and gain some self sufficiency.
fall 2014
chairs from a summer abroad program in copenhagen were connected throughout 3 spaces on 2 separate floors. lines of tape linked the spaces and traced our experience using outlines of landmarks and photographs of the experience. my contribution included project management, concept development, chair layout and design proposal, and installation.
spring 2014: 37 main street, brooklyn
views, spaces, and program are interconnected throughout this design inspired by isamu noguchi’s sculpture “strange bird (to the sunflower)”.
the program was strategically laid out to promote interconnection of function, views and space.
the site is situated on a corner with access to views in all directions. the design seeks to extend these views throughout the annex.
noguchi’s sculpture uses no glues or other means of attachment, the pieces fit together like a puzzle. the design strives to achieve the same level of integrity in its assembly.
level 1
level 2
catalog of use
catalog of assembly
classroom space, hand drawing
exhibit space, hand drawing
exhibit space, revit and photoshop
fall 2014: 375 park avenue, manhattan
with respect to the original architectural grid and mies van der rohe’s belief in blurring the line between inside and outside, this design seeks to bring the surrounding urban landscape to the scale of the interior. layout, materiality and system upgrades seek to offset the extreme energy consumption of the building while maintaining the above principles.
the surrounding blocks were mapped according to building heights ie. tall, medium, low and plaza. an urban landscape was created in the interior by assigning “heights” to different parts of the program according to functional needs such as privacy, views and required square footage.
a living wall was incorporated in the design. the selected plants remove toxins from the air, and studies show that having plants in the workplace reduces stress and increases productivity. additionally, having plants would help keep the space cool during warm summer months without using additional energy.
in the style of one of mies van der rohe's contemporaries alexander girard, the surrounding buildings were abstracted into patterns that were applied to the living wall.
enclaves provide secluded areas for phone calls or small meetings.
the geometric motif of the living wall continued through to the double height feature wall.